Elevate Your Egnyte Expertise. Join our Customer Community to connect with a network of peers and share game-changing strategies. Join Today

Welcome to
Help Desk

Product Updates
Training
Support
Ideas Community Contact Support

Egnyte’s AI Assistant - Summarize and Ask Questions on a Single Document

Document Summarization

Egnyte’s AI Assistant synthesizes the content using industry-leading large language models (LLMs). These models will recognize and generate the summary based on the information within the document. 

To retrieve the document summary, open any of the supported files for preview and click on the Generate Summary prompt in Egnyte’s AI Assistant. 

The instruction will be visible in the chat input. Users can make changes, if required.

Users can save the prompt to the Prompt Library, copy the text, or edit the prompt to refine the response generated. 

To edit the prompt, click on the Edit icon, modify the prompt, and click on Submit

The new response will be generated as per the new prompt. 

- This feature is available on all Platform plans.
- In domains with the AI add-on enabled, users will be able to interact with Egnyte's AI Assistant as per the source(s) selected rather than just the document in preview.

Q&A on the Document

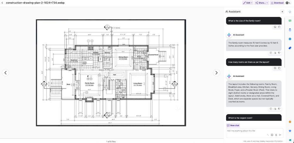
Egnyte’s AI Assistant can be used on a single document and it allows the users to ask questions about a document using a chatbot-style interface. Users can also ask questions on complex spreadsheets and extract insights using natural language queries, without writing a single formula or line of code.

Egnyte’s AI Assistant opens by default when a user opens a document in full preview. If the user has opened any other available options, they can click on the Egnyte’s AI Assistant icon in the sidebar to utilize the feature.

At this point, users can click on the prompt to generate a summary of the document, or select other prompts. User can also provide audio input or type their questions in the chat box at the bottom.

Users can provide an input and click on the Improve prompt icon to automatically improve and generate a prompt. They can then insert the improved prompt to get the desired response.

Once the user starts interacting on a document, they can also use the suggested prompts to get a response. 

Learn more about Prompts Management in Egnyte’s AI Assistant on a Single Document.

The users can also use the dropdown at the top to select another class of the document. The prompts will be displayed based on the selection. 

WebUI_Ask 4-mar-26 10.png

Users can provide feedback for every response generated. Click on the New chat button to start a new chat on the same document. 

Users can also view the inline citations in the response generated. 

Use Egnyte’s AI Assistant on Images

The users can also use Egnyte’s AI Assistant to ask questions on the supported images based on the textual and visual elements in the files. They can use generate summary or other prompts to get a response.

The users can also ask various other questions on the image files to get a response or use the suggested prompts once the conversation begins.

Frequently Asked Questions

Is Data Confidentiality Assured While Egnyte’s AI Assistant Generates Summaries?

Egnyte remains committed to the confidentiality of the user's data. The inputs, summaries, and

data:

  • Are not available to other customers,
  • Are not used to improve third-party models, or any third-party products or services,
  • Are not stored by third-party models
  • Are not accessible by or visible to Egnyte employees

In addition, all generated summaries can only be accessed by users on the domain that have permission to view the original documents.

For more details on Egnyte's Privacy policy, click here.

Is it possible to opt out of these AI features?

Yes. An admin user can turn off these features by navigating to the Settings -> Configuration-> AI page and then setting the AI Assistant toggle to Disabled.

Turning the toggle off will turn off both the Document Summarization as well as the Document Q&A features (if available in the plan and on the domain). It is not possible to enable/disable individual features.

What Types of Files Can Be Summarized by Egnyte's AI Assistant?

The following file categories, extensions, and sizes are supported.

File Category File Extension File Size Limit (MB)
Document "doc", "docx", "docm", "odt", "dotm", "docb" 64
Spreadsheet "xls", "xlsx", "xlsm", "ods", "xlt", "xlm", "xltx", "xltm", "xlsb", "xla", "xlam", "xll", "xlw" 64
Presentation "ppt", "pptx", "pptm", "odp", "pot", "pps", "potx", "potm", "ppam", "ppsx", "ppsm", "sldx", "sldm" 64
Plain Text "htm", "html", "txt", "rtf", "xml", "pages", "numbers", "key", "msg", “eml”, "tsv", "xhtml", "csv", "dot", "wbk", "ps", "epub", "mbox", "wpd", "wp6", "wp7" 64
GDrive "gdoc", "gsheet", "gslides" 64
PDF (text extraction) "pdf" 64
Images "png", "jpg", "jpeg", "tif", "tiff", "bmp", "jpx","gif","webp" 64
OCR Requeue (ocr) "pdf" 64
Construction "dwg" 100

Construction files (.dwg) are supported only for customers with the Specialized File Handler add-on.

Can Some Documents Be Excluded from Being Summarized?

No. The summarization feature will summarize all files when enabled. Individual files can not be excluded from summarization.

What Types of Files Can Be Summarized and Can Be Used for the Q&A Feature?

Any file where text can be extracted can be summarized, and can also be used for Q&A. This includes text documents, presentations, spreadsheets and PDF files.

Can a user Provide Feedback on these Features?

Yes, the user can provide feedback on the summary and all the responses generated by clicking on the thumbs-up or thumbs-down icons that appear below every response generated by Egnyte's AI Assistant. 

If the users provide negative feedback on a response, a pop-up appears explaining that Egnyte may review logs to investigate the issue. Users can choose to give consent or opt out. Egnyte will only use logs to address the user issue.

CFS 91.0.0 Copilot- -2.png

Do the Users Have Any Control Over the Length/Type/Format of the Summary that is Created?

Not at this time. Egnyte is looking at adding additional configuration tools for the users.

Are there any document size limitations for creating summaries?

The first 90,000 characters of a document are used to generate a summary.

Will the Summary always generate the same responses?

Responses are cached and reused. However, the cache can expire and there is a possibility that the generated responses have some variation

Are the generated summaries always accurate?

Like any AI feature, the AI-driven summary is not perfect. It can sometimes generate responses that are incorrect, or misleading. It's important to fact-check information and not rely solely on the responses for critical decisions.

How are the Summaries and Answers Stored, And Who Has Access To Them?

Summaries are cached in memory for performance and are only visible to users who have permission to view the underlying file.

Are there any limitations associated with advanced spreadsheet analysis?

The following limitations are applicable on the advanced spreadsheet analysis:

  1. Supported File Types : .xlsx .xlsm .xls .xlsb .csv .tsv
  2. File Size Limit: It supports files up to 64MB to ensure fast, responsive answers.
  3. Focuses on Data, Not Design (.xls, .xlsb): For legacy Excel files, it is laser-focused on the text and numbers. It cannot interpret visual cues like cell colors or formatting (for example; asking it to sum up the highlighted rows will not work).
  4. Safe Analysis of Macros (.xlsm): While it seamlessly reads data from macro-enabled workbooks, it strictly analyzes the content and will not run or execute any embedded scripts or macros.
  5. Latest File Versions: It analyzes the data exactly as it appeared the last time the file was saved.

 

Related Links

AI-Driven Document Summarization in the Android App

AI-Driven Document Summarization & Document Q&A in the iOS App

Was this article helpful?
8 out of 8 found this helpful

For technical assistance, please contact us.